Jahresprogramm 2026 Musica Sacra in der katholischen Kirche St. Nikolaus zu Kahla:
Bekanntmachung - Baustart Sanierung Bergstraße:

Im Zuge der Sanierungsarbeiten an der Bergstraße (1. Bauabschnitt) wird der nördliche Bereich von der „Bachstraße“ bis zur „Unteren Kohlau“ für den Verkehr gesperrt.
Die Sperrung beginnt voraussichtlich
am Montag, den 23.03.2026.
Die Arbeiten werden unter
Vollsperrung durchgeführt. Entsprechende
Umleitungen sind ausgeschildert.
Die
Bushaltestelle Bergstraße wird für die Dauer der gesamten Baumaßnahme in die
Rudolstädter Straße verlegt.
Die Bauzeit des ersten Bauabschnittes ist derzeit
bis Oktober 2026 geplant. Der Baufortschritt ist wesentlich von der
Witterung abhängig.
Der zweite Bauabschnitt wird anschließend voraussichtlich
bis April 2027 im Bereich „Untere Kohlau“ bis Einmündung
„Karl-Liebknecht-Platz“ umgesetzt.
Wir bitten um Ihr Verständnis für die Unannehmlichkeiten, die durch diese Maßnahme entstehen.
Für Rückfragen steht Ihnen das
Bauamt der Stadt Kahla unter den bekannten
Telefonnummern jederzeit zur Verfügung.
Aktion „Saubere Umwelt 2026“ in Kahla:

Auch im Jahr 2026 findet in Kahla wieder die Aktion „Saubere Umwelt“ statt.
Mit dieser gemeinsamen Initiative setzen wir erneut ein sichtbares Zeichen für Umweltbewusstsein, Verantwortungsübernahme und aktives Engagement für unser Stadtbild.
Die Stadt Kahla und engagierte Bürgerinnen und Bürger tragen gemeinsam dazu bei, Straßen, Wege und öffentliche Plätze von Unrat zu befreien und so die Attraktivität und Lebensqualität unserer Stadt weiter zu stärken.
Alle Bürgerinnen und Bürger sind herzlich eingeladen, sich an der freiwilligen Aktion zu beteiligen.
Die diesjährige Säuberungsaktion findet
am Samstag, dem 21. März 2026, statt.
Wer mithelfen möchte, wird gebeten, sich möglichst bis zum 16. März 2026
bei der Stadtverwaltung Kahla anzumelden:
Stadtverwaltung Kahla – Sekretariat
Telefon:
036424 77100
E-Mail:
stadt@kahla.de
Die Teilnehmenden sammeln Müll und Unrat eigenständig.
Benötigt werden lediglich ein stabiler Müllsack oder ein geeignetes Behältnis sowie Arbeitshandschuhe.
Der eingesammelte Abfall wird in Abstimmung mit den Mitarbeitern des städtischen Bauhofs an vereinbarten Sammelstellen abgeholt.
Der Bauhof ist am Einsatztag von 09:00 bis 12:00 Uhr telefonisch erreichbar:
Telefon:
0151 55037192
Es wird darum gebeten, ein Mobiltelefon mitzuführen, um die Abholung koordinieren zu können.
Gemeinsam können wir viel bewegen – machen Sie mit und lassen Sie uns zusammen ein Zeichen für ein sauberes Kahla setzen
!
Jan Schönfeld
Bürgermeister
Zur Unterstützung unseres Teams innerhalb des
Freibades Kahla suchen wir für die Sommersaison 2026:
- Saisonmitarbeiter/in - Kasse (m/w/d)
- Saisonmitarbeiter/in - Kasse (m/w/d) (603 € Basis)
- Saisonmitarbeiter/in - Rettungsschwimmer/in (m/w/d) (603 € Basis)
Alle weiteren Details zu den Stellenausschreibungen
finden Sie hier.
Der Abfallwirtschaftsbetrieb informiert:
Änderungen bei der Entsorgung:
Restmüll Hermsdorf vom 20. Februar:
Die Restmüll-Tour Hermsdorf vom 20.02. musste aufgrund eines technischen Defekts abgebrochen werden.
Die Leerung der verbliebenen Behälter erfolgt voraussichtlich am
23.02.2026, 24.02.2026 bzw. spätestens am
25.02.2026.
Bitte lassen Sie die Behälter für die Nachleerung bereitstehen.
Betroffen sind unter anderem folgende Straßenzüge in Hermsdorf:
- Friedenssiedlung
- Käthe-Kollwitz-Platz
- Am Stadion
- Naumburger Str.
- Beethovenstr.
- Am Bahnhof
- Schleifreisen
- Autobahn Hermsdorf
- Tankstelle Ost
- Lahnsteiner Str.
Nicht geleerte Tonnen vom 16.02.:
Das Entsorgungsunternehmen teilt mit:
Aufgrund nicht geräumter oder unbefahrbarer Straßen konnten am Montag, 16.02.,
die Leerungen in den betroffenen Gebieten nur teilweise oder gar nicht durchgeführt werden.
Folgende Ortschaften sind betroffen:
Restmüll:
Freienorla, Großeutersdorf, Hummelshain,
Kahla, Kleineutersdorf, Leubengrund, Lindig, Orlamünde, Schmölln.
Altpapier (blaue Tonne):
Böhlitz, Dothen, Grabsdorf, Hainchen, Kämmeritz, Kischlitz, Launewitz, Nautschütz, Petersberg, Poppendorf, Pratschütz,
Schkölen, Tünschütz, Wetzdorf, Willschütz, Zschorgula, Aubitz, Camburg, Döbrichau, Döbritschen, Graitschen/H.,
Kleinprießnitz, Posewitz, Schinditz, Stöben, Thierschneck, Tümpling, Wonnitz, Würschhausen, Zöthen.
Leichtverpackungen (Gelbe Tonne/gelber Sack):
Albersdorf, Bobeck, Gröben, Lotschen, Mennewitz, Podelsatz, Rabis, Ruttersdorf, Scheiditz, Schlöben, Schöngleina,
Trockhausen, Waldeck, Zinna, Zöttnitz, Beulbar, Bürgel, Gerega, Gniebsdorf, Ilmsdorf, Lucka, Thalbürgel, Droschka, Silbertal, Hetzdorf, Hohendorf, Göritzberg, Nischwitz.
Ersatztermine kann das Unternehmen nicht anbieten.
Betroffene Bürger können bei der nächsten regulären Leerung Beistellmengen (Säcke) bereitstellen, die dann mitgenommen werden.
Änderungen finden Sie immer aktuell unter:
saaleholzlandkreis.de
Beschwerden über nicht Abholung der gelben Tonne bitte an:
info@landbell.de
Kahla früher & heute - Geschichte beim Stadtspaziergang entdecken!
Anlässlich des 1150-jährigen Jubiläums unserer Stadt gibt es ab sofort
eine besondere Attraktion in der
Margarethenstraße 29.
In einem Schaufenster können Sie eine Videopräsentation „Kahla früher und heute“ erleben.
Historische Aufnahmen treffen auf aktuelle Ansichten - eine spannende Zeitreise durch die Entwicklung unserer Stadt.
Und das ist erst der Anfang!
In den kommenden Wochen werden weitere Bildschirme in leerstehenden Schaufenstern installiert.
Dort erwarten Sie zusätzliche Präsentationen mit eindrucksvollen Bildern und Geschichten aus 1150 Jahren Stadtgeschichte.
Verbinden Sie Ihren nächsten Spaziergang durch Kahla mit einem Blick in die Schaufenster.
Entdecken Sie historische Ansichten, vergleichen Sie Vergangenheit und Gegenwart - und erleben Sie, wie lebendig Geschichte sein kann.
Die Arbeitsgruppe Chronik arbeitet bereits mit viel Engagement an weiteren Höhepunkten, die im Jubiläumsjahr folgen werden.
Freuen Sie sich auf spannende Einblicke, besondere Aktionen und weitere historische Entdeckungen rund um unsere Stadtgeschichte.
Feiern Sie mit uns 1150 Jahre Kahla - wir freuen uns auf Ihren Besuch.
Viel Spaß wünscht
die Arbeitsgruppe Chronik
1150 Jahre Kahla
Foto: Jürgen Rosoli
Ersatztermin Ausfall gelbe Tonne:
Durch krankheitsbedingte Ausfälle wird am Freitag, den 20.02.2026 die gelbe Tonne In Kahla geleert.
Die Bürger werden gebeten Ihre Tonne stehen zu lassen.
Dienstleistungsbetrieb SHK
Beantragung Fördermittel „Heinz-Gries-Fonds“ 2026:
Anträge auf Bezuschussung der Kinder-, Jugend- und Seniorenarbeit sind vor Projektbeginn beim Sozial- und Kulturausschuss der Stadt Kahla
bis zum 15. März 2026 zu stellen.
Anträge können von Vereinen, Organisationen und anderen juristischen Personen gestellt werden, die Aktivitäten für Kinder, Jugendliche und Senioren organisieren und ihren Sitz in Kahla haben.
Die Anträge müssen eine detaillierte Aufstellung der Gesamtausgaben der Maßnahme beinhalten. Mit dem Antrag ist ein Finanzierungsplan für eine Anteilsförderung (max. 70 %) einzureichen.
Das Formular für die Antragstellung ist in der Stadtverwaltung, bei Frau Schweiger, Zimmer 3
oder über
diesen Link sowie unter
Formulare erhältlich.
Schweiger
Sozialverwaltung
Tag der offenen Vereine 2026 - Anmeldung:
Am 19. September 2026 findet der Tag der offenen Vereine statt.
Alle Vereine aus Kahla sind eingeladen sich gemeinsam an einem Veranstaltungstag entlang einer Vereinsmeile vom Rosengarten bis zum Saalewehr zu präsentieren.
Ziel der Veranstaltung ist es, die Vielfalt des Vereinslebens sichtbar zu machen und Besucherinnen und Besucher aktiv einzubinden.
Die Vereine sind eingeladen, sich Gedanken über ihre Präsentation zu machen - zum Beispiel durch Mitmachangebote, Vorführungen oder interaktive Aktionen.
Für die weitere Planung benötigen wir von allen teilnehmenden Vereinen folgende Angaben:
- Art der Vereinspräsentation/Mitmachangebote
- Benötigte Standfläche
- Eigene Versorgung am Stand (ja/nein)
Die Anmeldung erfolgt über den
Fragebogen auf der Internetseite (Link).
Rückgabefrist für den ausgefüllten Fragebogen ist der
10.03.2026.
Bei Rückfragen oder Anregungen können diese auch beim nächsten Planungstreffen eingebracht werden:
📅 Dienstag, 24.03.2026, um 18:00 Uhr, im Rathaus
Wir freuen uns auf Ihre Teilnahme und eine lebendige Vereinsmeile
!
Sehr geehrte Bürgerinnen und Bürger,
im Fundbüro des Ordnungsamtes der Stadt Kahla sind zahlreiche Fundsachen eingegangen, welche inzwischen Wochen und Monate gelagert wurden.
Darunter befinden sich unter anderem Schlüssel bzw. Schlüsselbunde, Portemonnaies, Krone, Handys, Fahrräder, Kopfhörer und weitere Gegenstände.
Wir möchten alle Bürgerinnen und Bürger darauf aufmerksam machen, dass Sie gerne während unserer Öffnungszeiten im Fundbüro vorbeischauen können, um ggf. ihre vermissten Gegenstände zu finden.
Bitte bringen Sie zur Identifikation Ihres Eigentums einen geeigneten Nachweis oder eine genaue Beschreibung des vermissten Gegenstandes sowie ein Ausweisdokument,
um Ihre Personalien als Empfängerin oder Empfänger der Fundsache hinterlegen zu können, mit.
Fundsachen, die innerhalb der gesetzlichen Aufbewahrungsfrist nicht abgeholt werden, werden gemäß den geltenden Vorschriften weiterverwertet oder entsorgt.
Für Rückfragen stehen wir Ihnen telefonisch unter
036424 77321 oder per E-Mail an
ordnungsamt@kahla.de gerne zur Verfügung.
AUSSCHREIBUNG
Pachtvertrag
für den KIOSK im FREIBAD KAHLA
für die nächsten 3 Jahre beginnend ab der Saison 2026
Downloadlinks:
Das Freibad:

Das Freibad in Kahla gehört zu den größten Freibädern des Saale-Holzland-Kreises, ist direkt an der Saale gelegen und lockt jedes Jahr in der Badesaison zahlreiche Besucher an.
Es ist für das gesamte südwestliche Kreisgebiet ein zentraler Anziehungspunkt als Freizeiteinrichtung in den Sommermonaten. Die Außenanlage ist weiträumig angelegt und bietet jedem Besucher zahlreiche Möglichkeiten einer effektiven Freizeitgestaltung.
Den erholungssuchenden Besuchern bietet es verschiedene Möglichkeiten für einen angenehmen Aufenthalt.
Im Vordergrund steht hierbei das Baden in einem Planschbecken für die Kleinsten, einem Nichtschwimmerbecken mit einer Wasserrutsche sowie einem Schwimmbecken,
welches Wettkampfbedingungen erfüllt. Auch sportliche Aktivitäten können durch ein Beachvolleyballfeld und einer Kegelbahn wahrgenommen werden.
Weiterhin sorgt ein kinderfreundlicher Spielplatz für die Beschäftigung der kleinsten Besucher unseres Freibades.
Des Weiteren finden zahlreiche Veranstaltungen und Aktivitäten wie z. B. Spendenschwimmen, Neptunfest sowie Schulschwimmen und Schwimmlager statt.

Die Besucherzahl beträgt pro Badesaison ca. 13.000 Personen.
1. Persönliche Voraussetzungen
Für den Kiosk im Freibad wird ein Pächter gesucht, der sich eigenverantwortlich um das leibliche Wohl der Gäste im Freibad kümmert.
Der zukünftige Pächter sollte ein breites und angemessenes Angebot an Speisen und Getränken zu angemessenen Preisen führen und die Wünsche der Besucher jeden Alters berücksichtigen.
Er sollte weiterhin ein freundliches und engagiertes Auftreten gegenüber unseren Gästen haben und gern im Dienstleistungssektor arbeiten.
Sein Personal sollte er so einsetzen, dass der witterungsabhängig zu erwartende Besucherstrom schnell und kompetent bedient werden kann.
Wünschenswert zum Betreiben des Kioskes sind Erfahrungen und Vorkenntnisse in der Gastronomie oder vergleichbaren Bereichen.
Notwendig sind die Nachweise über die Kenntnis der entsprechenden gesetzlichen und hygienerechtlichen Vorschriften.
Der Pächter hat alle für den Betrieb des Kioskes erforderlichen Genehmigungen und notwendigen Versicherungen nachzuweisen. Eine steuerliche Unbedenklichkeitsbescheinigung ist ebenfalls vorzuweisen.
2. Objektbeschreibung
Das Freibadgelände hat eine Gesamtfläche von ca. 18.500 m². Die Nutzfläche der Räumlichkeiten des Verkaufs- und Lagerraumes beträgt insgesamt ca. 38,00 m².
Die Aufteilung entnehmen Sie bitte dem Grundris (Anlage 1). Direkt vor den Räumlichkeiten befindet sich eine befestigte Freifläche zur Schaffung von Sitzmöglichkeiten und einer Außenbewirtschaftung.
Die Erschließung (Strom, Wasser, Abwasser) ist gesichert.
Die genannten Räumlichkeiten und Flächen werden dem Pächter ohne Inventar überlassen. Er hat notwendige Ausstattungsgegenstände auf eigene Kosten zu stellen und instand zu halten.
Der Pächter ist verpflichtet zum Zwecke der Erhaltung des Pachtobjektes in einem zu dem vertragsgemäßen Gebrauch geeigneten Zustand notwendige Renovierungen in den gepachteten Räumen auf eigene Kosten vorzunehmen.
Endet das Pachtverhältnis, so hat der Pächter keinen Anspruch auf Entschädigung für die eingebrachten baulichen Maßnahmen.
Dem Pächter obliegt die Reinigung und die Verkehrssicherungspflicht der Pachtfläche einschließlich Freifläche vor den Räumlichkeiten.
Die gepachteten Flächen und Räumlichkeiten sind in einem gepflegten und ansehnlichen Zustand zu halten.
3. Saisonale Öffnungszeiten
Die regelmäßigen Öffnungszeiten des Kioskes sind an die Öffnungszeiten des Freibades gebunden.
Bei Schlechtwetter und vorbehaltlich der Öffnungszeiten des Freibades sind die Öffnungszeiten mit der Stadt Kahla abzustimmen.
Die Badesaison beginnt wie alljährlich am 01.06. und endet am 30.08. bei Schönwetter bis Mitte September. Je nach Wetterlage ist aber eine Änderung möglich.
Öffnungszeiten von Juni und September
- Täglich von 13:00 - 20:00 Uhr
Öffnungszeiten Juli und August (in den Sommerferien)
- Täglich von 10:00 - 20:00 Uhr
Für die Generalsanierung des Freibades hat die Stadt Förderanträge gestellt.
Sollte es zu Schließungen für eine Saison wegen einer Generalsanierung des Freibades kommen, verlängert sich der Pachtvertrag um diese Zeit.
4. Pacht
Als Beginn des Pachtverhältnisses ist der 01.04.2026 vorgesehen. Die Pachtdauer beträgt fest 3 Jahre mit der Option der Verlängerung um 3 Jahre.
Sie bieten mit Ihrem Angebot einen Jahrespachtpreis an. Dieser beinhaltet die Jahrespacht für den Kiosk sowie für zwei Veranstaltungen
(z. B. Grillabend, Theaterabend mit Dinner, Sommerkino, Abendschwimmen mit Musik usw.) bis 22:00 Uhr während der Saisonale Öffnungszeiten.
Während diesen Veranstaltungen ist die Wasseraufsicht inklusive. Bei diesen Veranstaltungen sind Sie Veranstalter.
Der Mindestpachtpreis beträgt jährlich pro Saison 450,00 € zzgl. der gesetzlichen MwSt. Dieser ist jeweilig zu einem Drittel zu Beginn der Monate (Fälligkeit bis 7. Werktag) Juni, Juli und August fällig.
Des Weiteren können Sie weitere Veranstaltungen im Freibad auch bis 24:00 Uhr während sowie auch nach der Saison durchführen.
Dazu ist entweder eigenes Aufsichtspersonal für die Wasseraufsicht zu stellen oder die Wasserfläche ist durch einen Zaun abzusperren.
Der Mindestpachtpreis beträgt pro Veranstaltung 250,00 € zzgl. der gesetzlichen MwSt.
Hierzu bieten Sie einen weiteren Pachtpreis pro Veranstaltung an.
5. Betriebskosten
Der Pächter bezahlt Betriebskosten. Zu den Betriebskosten gehören Strom, Wasser, Abwasser, Versicherung etc. sowie weitere sonstige Betriebskosten. Näheres dazu wird im Pachtvertrag geregelt.
Für die Gewerbemüllentsorgung ist er eigenständig zuständig. Dies umfasst auch die Entleerung der von Ihm aufzustellenden Abfallbehälter am Kiosk und im Sitzbereich
vor dem Kiosk sowie an den vorhandenen überdachten Sitzgelegenheiten auf der Wiese vor dem Kiosk.
Für die Ausgabe und den Verkauf von Getränken und Speisen sollen umweltfreundliche Materialien eingesetzt werden.
Der Einsatz von verletzungsgefährdeten Stoffen (z. B. Glas) ist grundsätzlich verboten.
Die momentane Betriebskostenvorauszahlung pro Jahr beträgt 1.200,00 € zzgl. der gesetzlichen MwSt.
Diese ist jeweilig zu einem Drittel zu Beginn der Monate (Fälligkeit bis 7. Werktag) Juni, Juli und August fällig.
Die Betriebskosten werden im folgenden Kalenderjahr spitz abgerechnet und neu angepasst.
6. Informationen zur Ausschreibung
Eine Besichtigung des Kiosks ist generell nach voriger Terminabsprache möglich.
Ansprechpartner: Frau Herrmann
E-Mail:
vergabe@kahla.de
Telefon:
036424 77610
Bitte nutzen Sie zur Abgabe Ihrer Bewerbung ausschließlich das
Bewerbungsformular.
Ihre Unterlagen und das ausgefüllte Bewerbungsformular reichen Sie bitte in einem verschlossenen Umschlag mit dem Vermerk Ausschreibung Kiosk Freibad Kahla bis spätestens
zum 26.03.2026, 12:00 Uhr bei der
Stadt Kahla
Markt 10
07768 Kahla
ein.
Bewerbung für den Pachtvertrag für den KIOSK im FREIBAD KAHLA
für die nächsten 3 Jahre beginnend ab der Saison 2026.
Name / Firma: ....
Straße, Hausnummer: ....
Postleitzahl, Stadt: ....
Ansprechpartner: ....
Telefonnummer: ....
E-Mail-Adresse: ....
Hiermit biete ich einen jährlichen Pachtpreis in Höhe von .... € zzgl. der gesetzlichen MwSt.
Hiermit biete ich einen Pachtpreis je Veranstaltung in Höhe von .... € zzgl. der gesetzlichen MwSt.
Folgende Unterlagen liegen der Bewerbung bei:
- Steuerliche Unbedenklichkeitsbescheinigung Ja/Nein
- Betriebshaftpflicht Ja/Nein
Ort, Datum: ....
Unterschrift: ....
Update 1: Neue historische Ausgaben der Kahlaer Nachrichten online:
Das Archiv der Kahlaer Nachrichten wurde erneut erweitert:
Weitere Ausgaben
aus den Jahren 2005 bis 2006 sind nun online verfügbar.

Zudem stehen mittlerweile auch nahezu alle Ausgaben
von der Erstausgabe im Januar 1990 bis heute bereit.
Insgesamt sind derzeit 814 Ausgaben online abrufbar.
Interessierte Leserinnen und Leser können wertvolle Einblicke in die lokale Geschichte gewinnen.
Besuchen Sie die Webseite jetzt, um die spannenden Artikel und Berichte zu entdecken
!
Straßenreinigung/Winterdienst:
Sehr geehrte Grundstückseigentümer und Grundstücksnutzungsberechtigte der Stadt Kahla,
auf Grund der jahreszeitbedingten Witterungsverhältnisse möchten wir Sie daran erinnern, dass gemäß der Straßenreinigungssatzung
für das Gebiet der Stadt Kahla die Verpflichteten nach § 3 wie Hauseigentümer, Wohnungsberechtigte etc. zur Schneeräumung sowie die Beseitigung von Schnee- und Eisglätte verpflichtet sind.
Bei Schneefall sind Gehwege und Zugänge zu Überwegen vor ihren Grundstücken so zu räumen, dass der Verkehr nicht mehr als unvermeidbar beeinträchtigt wird.
Die vom Schnee geräumten Flächen vor den Grundstücken müssen so aufeinander abgestimmt sein, dass eine durchgehende benutzbare Gehwegfläche gewährleistet ist.
Für jedes Grundstück ist ein Zugang zur Fahrbahn und zum Grundstückseingang in einer Breite von mindestens 1,5 m zu räumen.
Dabei ist zu beachten, dass der Schnee nur so auf den Verkehrsflächen abgelagert werden darf, dass der Verkehr und vor allem auch die Räumfahrzeuge nicht beeinträchtigt werden.
Die Abflussrinnen müssen bei Tauwetter von Schnee freigehalten werden.
Bei Schnee- und Eisglätte haben die Verpflichteten die Gehwege, die Zugänge zu den Überwegen, die Zugänge zur Fahrbahn und zum Grundstückseingang derart und so zu bestreuen, dass Gefahren nach allgemeiner Erfahrung nicht entstehen können.
Stellplätze für Altkleider- und Glascontainer:
Im Gebiet der Stadt Kahla stehen Ihnen an verschiedenen Standorten Stellplätze für Altkleidercontainer sowie Glascontainer zur Verfügung.
Diese Sammelstellen leisten einen wichtigen Beitrag zur getrennten Abfallentsorgung und zum Umweltschutz.
Folgende Stellplätze gibt es derzeit:
Die Standorte sind als Google-Maps-Links markiert.
Sie können diese direkt für die Navigation nutzen.
So finden Sie die Container einfacher und schneller.
Die Altkleidercontainer dienen der Sammlung gut erhaltener Kleidung, Schuhe und Textilien.
Die Glascontainer sind für die Entsorgung von Verpackungsglas nach Farben (Weiß-, Braun- und Grünglas) vorgesehen.
Andere Abfälle, wie Hausmüll, Sperrmüll oder Glasarten wie Porzellan, Keramik oder Fensterglas, dürfen dort nicht entsorgt werden.
Wir bitten Sie eindringlich, auf die Sauberkeit an den Containerstandorten zu achten. Abfälle oder Altkleider dürfen nicht neben den Containern abgestellt werden.
Überfüllte Container sind kein Grund, Wertstoffe daneben abzulegen. In solchen Fällen wird gebeten, einen anderen Standort aufzusuchen oder die Entsorgung zu einem späteren Zeitpunkt vorzunehmen.
Katze gefunden - Eigentümer gesucht:
Seit Dezember 2025 wurde im Bereich der Rudolstädter Straße eine Katze beobachtet. Da die Katze immer mehr abbaut, wurde Sie in Obhut genommen.
Nun suchen wir den Eigentümer dieser Katze.
Die Katze ist ca. 2-3 Jahre alt und weder gechipt noch tätowiert. Besondere Merkmale sind ein heller Strich am Kopf und der rechte Fangzahn ist abgebrochen. Wer seine Katze erkennt, meldet sich bitte umgehend im
Ordnungsamt.
Telefon:
- 036424 77321
- 036424 77322
- 036424 77323
- 036424 77324
Öffentliche Bekanntmachung:
der Gewässerschau für die „Saale“ (Gewässer 1. Ordnung) im März 2026
in den Landkreisen Saalfeld-Rudolstadt, Saale-Holzland-Kreis und der Stadt Jena
Auf der Grundlage des § 74 Thüringer Wassergesetz (ThürWG) vom 28.05.2019 wird beim Thüringer Landesamt für Umwelt,
Bergbau und Naturschutz (TLUBN) eine Schaukommission für das Gewässer 1. Ordnung „Saale“ gebildet.
Für die Durchführung der Schau an Gewässern 1. Ordnung ist das TLUBN zuständig.
Geschaut wird das Gewässer, die Uferbereiche, die Anlagen an den Gewässern und die Überschwemmungsgebiete.
Im Zuge der Gewässerschau werden die Gewässerrandstreifen begangen. Die betreffenden Grundstückseigentümer/Nutzungsberechtigten
werden hiermit informiert, dass eine Duldungspflicht für das Betreten der Grundstücke
nach § 101 Abs. 1 Satz 1 Nr. 1, 4 und 6 WHG besteht, soweit dies erforderlich ist.
Aus der nachfolgenden Tabelle sind die vorgesehenen Schautermine und die zu schauenden Gewässerabschnitte ersichtlich.
Witterungsbedingt kann es zu Einschränkungen und Terminverschiebungen kommen.
Termine für die Gewässerschau im März 2026 des Gewässers 1. Ordnung „Saale“ in den Landkreisen Saalfeld-Rudolstadt, Saale-Holzland-Kreis und der Stadt Jena
(Änderungen vorbehalten)
| Datum | Uhrzeit | Gewässerabschnitt * | Landkreis |
03.03. 2026 | 8-16 Uhr | Rudolstadt (Schwarzamündung bis Rudolstadt Ost), Weißen, Uhlstädt, Oberkrossen, Kleinkrossen, Rückersdorf | Saalfeld-Rudolstadt |
05.03. 2026 | 8-16 Uhr | Orlamünde, Kahla, Oelknitz, Rothenstein | Saale-Holzland-Kreis |
24.03. 2026 | 8-16 Uhr | Stadtgebiet Jena (Göschwitz bis Rasenmühlenwehr) | Stadt Jena |
26.03. 2026 | 8-16 Uhr | Stadtgebiet Jena (Rasenmühlenwehr bis Kunitz) | Stadt Jena |
* Aufzählung erhebt keinen Anspruch auf Vollständigkeit
An- oder Rückfragen können an folgende Adresse vorgenommen werden:
Postalisch:
Thüringer Landesamt für Umwelt, Bergbau und Naturschutz
Referat 44
Göschwitzer Straße 41
07745 Jena
Gewässerunterhaltung:
Telefon:
0361 57 3942 888
E-Mail:
gu@tlubn.thueringen.de
Festsetzung der Grundsteuer 2026 und Hundesteuer 2026:
Die Stadt Kahla setzt hiermit die
Grundsteuerhebesätze für das Kalenderjahr 2026 wie folgt fest:
- Grundsteuer A 330 v. H.
- Grundsteuer B 430 v. H.
Die Stadt Kahla setzt gemäß § 27 Grundsteuergesetz die Grundsteuer für das Kalenderjahr 2026 in gleicher Höhe wie im Vorjahr fest.
Mit der Veröffentlichung der Bekanntmachung treten für die Steuerpflichtigen die gleichen Rechtswirkungen ein,
als wenn ihnen an diesem Tag ein schriftlicher Grundsteuerbescheid für 2026 zugegangen wäre. Soweit zwischenzeitlich ein geänderter Grundsteuerbescheid erteilt wurde, gilt dieser.
Die einzelnen Fälligkeiten entnehmen Sie bitte aus dem zuletzt ergangenen Steuerbescheid.
Sollte sich die Besteuerungsgrundlage (z. B. Änderung der Messbeträge durch das zuständige Finanzamt) ändern, werden gemäß § 27 Abs. 2 des Grundsteuergesetzes Änderungsbescheide erteilt.
Rechtsbehelfsbelehrung:
Gegen die Festsetzung der Grundsteuer kann innerhalb eines Monats nach Veröffentlichung dieser Bekanntmachung Widerspruch eingelegt werden.
Der Widerspruch ist schriftlich oder zur Niederschrift bei der Stadtverwaltung Kahla, Markt 10, 07768 Kahla einzulegen.
Schönfeld
Bürgermeister der Stadt Kahla
Allgemeine Hinweise für alle Steuerzahler:
Fälligkeitstermine Grundsteuern:
Gemäß § 28 Grundsteuergesetz gelten folgende Fälligkeiten:
- vierteljährliche Zahlung:
15.02., 15.05., 15.08., 15.11.
- halbjährliche Zahlung:
15.02., 15.08.
- jährliche Zahlung:
01.07.
Fälligkeit Hundesteuer:
Für die Erhebung und Fälligkeit der
Hundesteuer gilt die Satzung der Stadt Kahla.
Fälligkeitstermin ist der 01.07. eines
jeden Jahres.
Beachtung bei erteilter Einzugsermächtigung:
Haben Sie mit der Stadt Kahla Lastschrifteinzug vereinbart
(SEPA-Mandat hier erteilen),
werden wir die fälligen Beträge von Ihrem Konto abbuchen.
Bitte sorgen Sie dafür, dass Ihr Konto für die einzuziehenden Beträge die erforderliche Deckung aufweist,
andernfalls ist das kontoführende Geldinstitut nicht verpflichtet, den Abbuchungsaufträgen zu entsprechen.
Sollte sich Ihr Konto ändern, bitten wir um rechtzeitige Mitteilung.
Haben Sie mit uns keine Einzugsermächtigung vereinbart, bitten wir um fristgerechte Überweisung
der fälligen Steuer auf unser Konto
Inhaber: Stadtverwaltung Kahla
Bank: Deutsche Kreditbank AG
IBAN: DE 29 1203 0000 0001 0105 45
BIC: BYLADEM1001
unter Angabe des entsprechenden
Akten-/Buchungszeichens.
Bei Fragen oder Problemen steht Ihnen das Steueramt gerne zur Verfügung:
Telefon:
036424 77207
E-Mail:
steuern@kahla.de
Mit freundlichen Grüßen
Ihr Steueramt
Neue Webcam - Stadt Kahla/Thüringen:

Hinweise:
Klicken Sie auf das Vorschaubild oder einen der folgenden Links, um direkt zum Livestream zu gelangen.
Sie können die Webcam zukünftig auch über den Menüpunk 'Aktuelles' - 'Webcam' aufrufen.
Alle weiteren Informationen zur Webcam finden Sie über diesen Link.
Webcam:
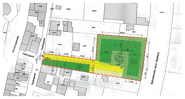
Vorhabenbezogener Bebauungsplan „Töpfergasse“
Bekanntmachung des Aufstellungsbeschlusses
Der Stadtrat der Stadt Kahla hat in seiner öffentlichen Sitzung am 03.05.2024 (Beschlussnummer 20/2024) die Aufstellung des vorhabenbezogenen Bebauungsplanes „Töpfergasse“ nach § 12 Abs. 2 (BauGB) beschlossen.
Der räumliche Geltungsbereich des Bebauungsplanes ist in Abbildung 2 Lageplan (maßstabslos) durch schwarze Umrandung gekennzeichnet.
Folgende Grundstücke der Gemarkung Kahla befinden sich innerhalb des räumlichen Geltungsbereiches:
Gemarkung Kahla, Flur 1, Flurstücksnummer 326 und 327/3.
Mit der Aufstellung des Bebauungsplanes wird die Schaffung von Wohnbebauung angestrebt.

Abbildung 2 Räumlicher Geltungsbereich (ohne Maßstab)
Öffentliche Bekanntmachung zur Zwischenabwägung der Stellungnahmen zum Vorentwurf des Flächennutzungsplans,
zur Billigung des Entwurfs des Flächennutzungsplans sowie zur Durchführung der Beteiligung der Öffentlichkeit
gemäß § 3 Abs. 2 Baugesetzbuch (BauGB) sowie der Einholung der Stellungnahmen der Behörden und sonstigen Träger öffentlicher Belange gemäß § 4 Abs. 2 BauGB
Gemäß § 1 Abs. 3 BauGB sind Flächennutzungspläne als vorbereitende Bauleitpläne von den Gemeinden für das gesamte Gemeindegebiet in eigener Verantwortung aufzustellen,
sobald und soweit es für die städtebauliche Entwicklung und Ordnung erforderlich ist. Ziel und Zweck der Planung ist die Sicherung einer langfristigen und nachhaltigen
Gemeindeentwicklung vor allem vor dem Hintergrund des demografischen Wandels, der Sicherung als Grundzentrum und der Folgen klimatischer Veränderungen.
Der Stadtrat der Stadt Kahla hat in seiner Sitzung am 05.09.2019 die Aufstellung eines Flächennutzungsplans und die dafür notwendige Plan-Umweltprüfung für das gesamte Stadtgebiet beschlossen.
Die frühzeitige Beteiligung zum Vorentwurf des Flächennutzungsplans erfolgte im Zeitraum Januar bis März 2024.
Die im Rahmen der frühzeitigen öffentlichen Auslegung und der frühzeitigen Beteiligung der Behörden und sonstigen Träger
öffentlicher Belange eingegangenen Anregungen und Hinweise zum Vorentwurf des Flächennutzungsplans wurden geprüft und in den Entwurf des Flächennutzungsplans eingearbeitet.
In seiner Sitzung am 28.08.2025 hat der Stadtrat mit Beschluss-Nr. 47/2025
- die Billigung des Entwurfs des Flächennutzungsplans, bestehend aus Planzeichnung und Begründung einschließlich Umweltbericht in der Fassung vom 07.08.2025 und
- die Durchführung der Beteiligung der Öffentlichkeit gemäß § 3 Abs. 2 BauGB sowie die Einholung der Stellungnahmen der Behörden
und sonstigen Träger öffentlicher Belange gemäß § 4 Abs. 2 BauGB zum Entwurf des Flächennutzungsplans beschlossen.
Beteiligungsunterlagen:
- Planzeichnung Flächennutzungsplan Stadt Kahla - Entwurf M 1: 5.000 (Stand 07.08.2025)
- Begründung Flächennutzungsplan Stadt Kahla - Entwurf (Stand 07.08.2025) mit den Anlagen:
- Umweltbericht zum Flächennutzungsplan Stadt Kahla - Entwurf (Stand 07.08.2025)
- Wohnbauflächenanalyse und Prognose bis 2035 für die Stadt Kahla (17.01.2025)
- Zwischenabwägung zum Flächennutzungsplan Stadt Kahla (Frühzeitige Beteiligung zum Vorentwurf - Teil A und B, Stand 07.08.2025)
Die
Beteiligungsunterlagen sowie der Inhalt dieser Bekanntmachung können im Zeitraum vom
18. September bis einschließlich 31. Oktober 2025
auf der Internetseite der Stadt Kahla unter
https://kahla.de/cs/FNP_Beteiligung.php eingesehen werden.
Es wird darauf hingewiesen, dass:
- Stellungnahmen während der Dauer der Veröffentlichungsfrist abgegeben werden können,
- Stellungnahmen elektronisch an bauamt@kahla.de (Betreff: FNP-Entwurf) übermittelt werden sollen,
bei Bedarf aber auch auf anderem Weg (schriftlich an unten stehende Adresse oder persönlich und mündlich zur Niederschrift) abgegeben werden können und
- dass nicht fristgerecht abgegebene Stellungnahmen bei der Beschlussfassung über den Bauleitplan unberücksichtigt bleiben können
- ergänzend zu dem Hinweis nach § 3 Abs. 2 S. 4 zweiter Halbsatz BauGB eine Vereinigung im Sinne
des § 4 Abs. 3 S. 1 Nummer 2 des Umwelt-Rechtsbehelfsgesetzes in einem Rechtsbehelfsverfahren nach
§ 7 Abs. 2 des Umwelt-Rechtsbehelfsgesetzes gemäß § 7 Abs. 3 S. 1 des Umwelt-Rechtsbehelfsgesetzes mit allen Einwendungen ausgeschlossen ist,
die sie im Rahmen der Veröffentlichungsfrist nicht oder nicht rechtzeitig geltend gemacht hat, aber hätte geltend machen können.
Zusätzlich zur Internetveröffentlichung erfolgt innerhalb dieses Zeitraums die Auslage der Unterlagen zu jedermanns Einsicht im Bauamt der Stadt Kahla - Zimmer 22, Markt 10, 07768 Kahla während folgender Zeiten:
- Montag: von 9.00 - 12.00 Uhr
- Dienstag: von 9.00 - 12.00 Uhr und von 14.00 - 16.00 Uhr
- Donnerstag: von 9.00 - 12.00 Uhr und von 14.00 - 18.00 Uhr
- und nach Terminvereinbarung.
Folgende wesentliche, bereits vorliegende umweltbezogene Informationen sind verfügbar:
- im Umweltbericht (Bestandteil der Begründung) - hier Aussagen zum derzeitigen Umweltzustand der Schutzgüter (Bestandsbewertung),
zur Prognose der Planungsauswirkungen, zur Ermittlung des Eingriffsumfanges sowie der Eingriffs-/Ausgleichsbilanzierung sowie
- in Stellungnahmen aus der frühzeitigen Beteiligung nach §§ 3 Abs. 1 und 4 Abs. 1 BauGB:
| Schutzgut | Art der umweltbezogenen Informationen / Aussagen zu: |
| Mensch / Bevölkerung /Gesundheit | Freizeit und Erholungsfunktion, Immissionen |
| Pflanzen / Tiere / Biologische Vielfalt | Biotoptypen, Biotopverbund, Tierarten, Naturräume, Schutzgebiete, Artenvielfalt, Artenschutz, Inanspruchnahme von Lebensraum |
| Fläche | Siedlungsvorprägung, Flächeneffektivität, Versiegelung und Flächeninanspruchnahme |
| Boden | Bodenarten, Bodenfunktionsbewertung, Geotope, Bodenerosion, Archivfunktion, Altlasten, Inanspruchnahme/Verlust von Boden |
| Wasser | Grundwasser, Wasserschutzgebiete Oberflächenwasser, Gewässerzustand, Gewässerstrukturgüte, Überschwemmungsgebiete,
Hochwasserschutz, Hochwasserrisikogebiet, Oberflächenabfluss und Versickerung, ökologische Durchgängigkeit der Saale, wassergefährdende Stoffe |
| Klima / Luft | Klimadaten, Kaltluftsituation, Kaltluftentstehung, Kaltluftleitbahn, Klimatope, Bioklima, Klimawandel, Luftqualität |
| Landschaftsbild / Ortsbild | Siedlungsbild, Eigenart, Naturraum, Landschaftscharakter, Landschaftsüberprägungen |
| Kultur- und sonstige Sachgüter | Kulturlandschaft, Bodendenkmale, Denkmalensemble, archäologisches Relevanzgebiet, Inanspruchnahme landwirtschaftlicher Flächen |
| Wechselwirkungen | Wechselwirkungen zwischen Schutzgütern, komplexe Wirkzusammenhänge |
| Sonstiges | Emissionen, Abfälle / Abwasser, erneuerbare Energien und Energieeinsparung, Maßnahmen zur Vermeidung,
Verringerung und zum Ausgleich, Eingriffs- / Ausgleichsbilanzierung, Potenzial für Unfälle und Katastrophen, kumulative Auswirkungen, Alternativenprüfung, Monitoring |
Die diesen Informationen zugrunde liegenden Unterlagen liegen ebenfalls aus.
Hinweis:
Bei der Abgabe von Stellungnahmen ist die Angabe der Anschrift des Verfassers zweckmäßig. Eine Mitteilung des Abwägungsergebnisses ist anderenfalls nicht möglich.
Ohne Zuordnung der Stellungnahme kann die Einschätzung der Betroffenheit privater Belange erschwert sein.
Mit der Abgabe der Stellungnahme wird in die Verarbeitung personenbezogener Daten zum Zwecke der Durchführung des Bebauungsplanverfahrens eingewilligt.
Die Verarbeitung personenbezogener Daten erfolgt auf der Grundlage der Artikel 6 Abs. 1 Buchstabe e der Datenschutzgrundverordnung (DSGVO) in Verbindung
mit § 3 BauGB und dem Landesdatenschutzgesetz. Sofern Sie Ihre Stellungnahme ohne Absenderangaben abgeben, erhalten Sie keine Mitteilung über das Ergebnis der Prüfung.
Weitere Informationen entnehmen Sie bitte dem Formblatt „Information zur Verarbeitung von personenbezogenen Daten nach Art. 13 / Art. 14 der Datenschutzgrund-erordnung der EU (DSGVO)“, das mit ausliegt.
Fundtier gefunden - was ist zu tun?
Sie haben ein Tier gefunden, das scheinbar herrenlos umherirrt?
Dann handelt es sich vermutlich um ein
Fundtier - also ein Haustier, welches entlaufen und dessen Besitzer unbekannt ist. Hier erfahren Sie, wie Sie richtig vorgehen:
1. Nicht einfach mitnehmen!
Auch wenn Sie es gut meinen: Fundtiere dürfen
nicht einfach behalten oder weitervermittelt werden.
Sie gelten rechtlich als „Fundsache“. Sie sind gesetzlich verpflichtet, den Fund zu melden.
2. Melden Sie den Fund sofort
Wenden Sie sich umgehend an eine der folgenden Stellen:
- vorrangig das Ordnungsamt tagsüber von Montag bis Freitag
Telefon 036424 77-321
- wenn das Ordnungsamt nicht erreichbar ist, die Polizei
Telefon: 036424 844-0
Diese Stellen kümmern sich darum, das Tier fachgerecht unterzubringen und versuchen den Besitzer zu ermitteln.
3. Tier sichern - wenn möglich
Wenn es die Situation erlaubt und das Tier zahm ist, können Sie es vorsichtig sichern (z. B. mit einer Leine oder Transportbox).
Achten Sie auf Ihre Sicherheit - ein verletztes oder verängstigtes Tier kann unberechenbar reagieren.
4. Dokumentieren Sie den Fund
Ein Foto, der genaue Fundort, Datum und Uhrzeit helfen den Behörden bei der Suche nach dem Besitzer. Geben Sie alle Infos möglichst vollständig an.
5. Chip oder Tätowierung prüfen lassen
Tierärzte und Ordnungsämter können Tiere auf einen
Mikrochip oder eine Tätowierung prüfen.
So lässt sich der Halter oft schnell ermitteln.
Wichtig!
Wer ein Fundtier nicht meldet und es behält,
macht sich strafbar (Unterschlagung).
Nur wenn der Besitzer nicht innerhalb von
6 Monaten gefunden wird, darf das Tier unter bestimmten Umständen übernommen werden - aber nur in Absprache mit den Behörden.
Danke für Ihre Hilfe!
Ihr Handeln kann einem entlaufenen Tier den Weg zurück nach Hause ermöglichen.
Fundtiere brauchen Menschen, die richtig reagieren - so wie Sie!
Kahla wird digital: Die neue Orts.App vernetzt Gemeinde und Bürger:
Im Juli vor 35 Jahren erschien die
erste Ausgabe
der „
Kahlaer Nachrichten“.
Aktuelle Informationen aus der Stadtverwaltung, den Vereinen, Schulen und Kindergärten sowie Veranstaltungshinweise fanden und finden stets interessierte Leser.
Zusätzlich zu der gedruckten Ausgabe der „Kahlaer Nachrichten“ schafft die Stadt Kahla nun mit der
Kahla-App eine zeitgemäße Plattform,
die Verwaltung und Bürgerinnen und Bürger enger miteinander verbindet.
Die Digitalisierung der Bürgerkommunikation bringt zahlreiche Vorteile für alle Beteiligten:
Schnell, direkt und effizient - mit der neuen
Kahla-App wird die Kommunikation zwischen Stadt und Bürgern einfacher als je zuvor.
Egal ob Neuigkeiten aus der Stadt Kahla, wichtige Termine oder Vereinsnachrichten - alle Infos sind jetzt an einem Ort gebündelt und jederzeit digital abrufbar.

Download:
Google PlayStore -
Apple Appstore
Eine Orts.App, die sich für die Stadt lohnt:
Schnelle, zentrale Informationsverbreitung - Wichtige Mitteilungen landen direkt per
Push-Benachrichtigung auf den Smartphones der Bürgerinnen und Bürger.
Effiziente Kommunikation - Keine zeitintensiven Aushänge oder gedruckte Rundschreiben mehr, sondern aktuelle Infos in Echtzeit.
Entlastung durch digitale Services - Formulare und Dokumente wie Abfallkalender oder Anträge sind jederzeit abrufbar, direkt und ohne Umweg.
Stärkung der Bürgerbeteiligung - Die
Kahla-App ermöglicht es den Bürgern, aktiv am Stadtleben teilzunehmen.
Mehr für Bürgerinnen und Bürger:
Alle wichtigen Infos an einem Ort - Von Straßensperrungen über Stadtratsbeschlüsse bis hin zu Vereinsnachrichten - alles übersichtlich und leicht zugänglich.
Direkte Beteiligung - Mit Kommentaren, Umfragen und einer digitalen Pinnwand können Bürger ihre Stadt mitgestalten.
Ortsgruppen & Vereine vernetzen sich - Kitas, Schulen, Sportvereine und andere Gemeinschaften können angebunden werden und damit ihre eigenen Inhalte teilen.
Immer auf dem neuesten Stand - Dank
Push-Nachrichten geht keine wichtige Info mehr verloren.
Jetzt herunterladen & Teil der digitalen Kahla werden.
Die Kahla-App steht kostenlos im
App Store und
Google Play Store zum Download hier bereit:
📱 Google PlayStore
📱 Apple Appstore
Sehr geehrte Bürgerinnen und Bürger,
die Kommunale Arbeitsgemeinschaft, bestehend aus der Stadt Kahla und den Gemeinden der VG Südliches Saaletal,
erstellt aktuell für ihr Gebiet die kommunale Wärmeplanung. Die kommunale Wärmeplanung bildet eine Entscheidungshilfe,
die aufzeigt, wie in einzelnen Gebieten zukünftig die Wärme erzeugt werden kann. Hierzu erfolgt die Einteilung
in voraussichtliche Wärmeversorgungsgebiete (§ 18 Wärmeplanungsgesetz, WPG). Unterschieden wird dabei zwischen:
- dezentraler Versorgung - hier ist jeder Besitzer bei der Wärmeversorgung seiner Immobilie auf sich selbst gestellt und
kann alle mit den Vorgaben des Gebäudeenergiegesetzes konformen Heizungstechnologien wählen. Der Aufbau von Wärmenetzen wird hier nicht empfohlen.
- zentraler Versorgung - hier handelt es sich um Gebiete, die sich grundsätzlich für den Aufbau von Nahwärmenetzen eignen.
Den Kommunen werden weitere Planungsschritte zur genauen Prüfung der Umsetzung empfohlen. Im Falle der Eignung ist das Ziel, einen erheblichen Teil der Verbraucher an das Wärmenetz anzuschließen.
- Wasserstoffnetzgebiet - es handelt sich um Gebiete, in denen ein Wasserstoffnetz besteht oder nach Aussagen des Netzbetreibers (TEN) künftig die Versorgung mit Wasserstoff vorgesehen ist
- Prüfgebiet - sind Bereiche, wo eine klare Entscheidung hinsichtlich der Einteilung nicht getroffen werden kann und die daher in der Fortschreibung des Wärmeplans (nach fünf Jahren) erneut überprüft werden sollen.
Auf Basis der Ausgangsanalyse erfolgt die Einstufung in vier Stufen (§ 19 WPG): die Wärmeversorgungsart ist für ein Gebiet sehr wahrscheinlich geeignet,
wahrscheinlich geeignet, wahrscheinlich ungeeignet oder sehr wahrscheinlich ungeeignet. Für die Einstufung wurden unterschiedliche Indikatoren
wie z. B. die wirtschaftliche Eignung, die Siedlungsstruktur, die bereits bestehende Wärmeversorgung usw. herangezogen und mit den Bürgermeistern diskutiert.
Aufgrund der fehlenden Positionierung der Netztreiber können aktuell noch keine Aussagen zur Eignung für die Wasserstoffversorgung getroffen werden.

Die Öffentlichkeit hat entsprechend des Gesetzes die Möglichkeit die Ergebnisse einzusehen und in einem Zeitraum von 1 Monat Stellungnahmen
zur Einteilung der Gebiete zu beziehen. Die Ergebnisse der Einteilung für Ihre Gemeinde können Sie im Zeitraum 01.03.2025 bis zum 06.04.2025
über Link (
https://experience.arcgis.com/experience/...)
und QR-Code sichten.
Stellungnahmen können Sie bis 06.04.2025 über die Internetseite,
per E-Mail an
stadt@kahla.de oder schriftlich an Stadt Kahla, Markt 10, 07768 Kahla abgeben.
Ihre Stellungnahmen werden in der weiteren Planung berücksichtigt.
Zu beachten sind folgende Punkte:
- Es besteht kein Anspruch auf Einteilung zu einem bestimmten voraussichtlichen Wärmeversorgungsgebiet (§ 18 Abs. 2 WPG).
- Aus der Einteilung in ein voraussichtliches Wärmeversorgungsgebiet entsteht keine Pflicht, eine bestimmte Wärmeversorgungsart tatsächlich zu nutzen oder bereitzustellen (§ 18 Abs. 2 WPG).
- Im Wesentlich gilt somit, dass jeder Bürger ungeachtet dessen, in welchem Gebiet seine Immobilie liegt, die Möglichkeit hat,
sich für eine individuelle (dezentrale) Versorgungslösung zu entscheiden.
In Gebieten, die als „geeignet für eine zentrale Wärmeversorgung“ eingestuft wurden, sollen weitere Schritte unternommen werden,
um die Umsetzung von Wärmenetzen detaillierter zu prüfen und bei Interesse voranzutreiben.
Sollte dies nicht gelingen, ergeben sich daraus weder negative Konsequenzen für die Kommune noch für die Akteure, die sich darum bemühen.
- Die Ergebnisse der Wärmeplanung führen für Sie zu keinen zusätzlichen Pflichten oder Anforderungen.
Sollten Sie aktuell eine fossilbetriebene Heizungsanalage besitzen (z. B. Erdgas, Heizöl, Flüssiggas), können Sie diese,
mit Ausnahme eines irreparablen Havariefalls, nach aktuellen Gesetzesstand ohne Einschränkungen bis 31.12.2044 nutzen.
Der Planungsprozess soll bis zum 31.08.2025 abgeschlossen werden.
Im weiteren Verlauf der Planung sind noch Informationsveranstaltungen vorgesehen, in denen die Öffentlichkeit über die Ergebnisse informiert wird und die Möglichkeit erhält,
sich über das Wärmeplanungsgesetz oder aktuelle Fördermöglichkeiten zu informieren.
Bohranzeige Thüringen online:
Sehr geehrte Damen und Herren,
wir möchten Sie an dieser Stelle über die auch in unserer Pressemitteilung
(
tlubn.thueringen.de/medieninformationen....)
vom 05.12.2024 vorgestellte Einführung der digitalen Bohranzeige Thüringen informieren.
Anfang 2024 wurde die elektronische „Bohranzeige Thüringen“ in Betrieb genommen.
Anzeigen von Bohrungen, z. B. zur Errichtung vertikaler Erdwärmesonden, Grundwasserwärmepumpen, Brunnen oder für Baugrunduntersuchungen,
die aufgrund verschiedener gesetzlicher Vorgaben erforderlich sind, können nunmehr in einem einzigen Verfahren vorgenommen werden.
Dabei werden die fachlich notwendigen Daten in einem
Online-Formular abgefragt, das sich dem jeweiligen Vorhaben dynamisch anpasst.
Der Anzeigende erhält die Bestätigung des Anzeigeeingangs beim Thüringer Landesamt für Umwelt, Bergbau und Naturschutz nach drei Werktagen.
Außerdem wird die jeweilige untere Wasserbehörde über das geplante Vorhaben informiert.
Diese prüft, ob es sich um eine Anzeige gem. § 49 Abs. 1 oder 2 Wasserhaushaltsgesetz i. V. m. § 41 Abs. 2 Thüringer Wassergesetz handelt.
Diese ist immer dann erforderlich, wenn sich das Vorhaben unmittelbar oder mittelbar auf die Bewegung, die Höhe oder die Beschaffenheit des Grundwassers auswirken kann.
Die untere Wasserbehörde teilt dem Anzeigenden mit, ob eine wasserrechtliche Erlaubnis (z. B. bei der Entnahme von Grundwasser) für das Vorhaben notwendig ist.
Der Anzeigende kann den beteiligten Behörden über das System auch Mitteilungen senden,
z. B. auf Verzögerungen hinweisen oder Unterlagen nachliefern, und im weiteren Verfahren das erforderliche Einreichen der Ergebnisse der Bohrungen abwickeln.
Das Online-Portal „Bohranzeige Thüringen“ ist im Internet unter
www.bohranzeige.thueringen.de zu finden.
Ab dem 2. Quartal 2025 wird es in einem neuen, länderübergreifend einheitlich gestalteten Layout als Erdaufschluss digital fortgeführt.
Nähere Informationen zu den Themen „Geologiedatengesetz“ und „Anzeige von Bohrungen“ sind auf der Webseite des TLUBN
(
tlubn.thueringen.de/geologie-bergbau/....)
und in der Informationsbroschüre Anzeige- und Zulassungsverfahren für geologische Untersuchungen (z. B. Bohrungen),
Grundwassererschließungen und sonstige Erdaufschlüsse nach Geologiedatengesetz, Wasserhaushaltsgesetz und Bundesberggesetz zu finden.
Bitte informieren Sie Ihre Bürgerinnen und Bürger auf Ihrer Webseite über diesen Service.
Mit freundlichen Grüßen
Dr. Thomas Kammerer
Referent
Thüringer Landesamt für Umwelt, Bergbau und Naturschutz
Förderung von privaten Baumaßnahmen
im Rahmen des Kommunalen Förderprogramms der Stadt Kahla:
Die Stadt Kahla unterstützt bereits seit 2003 private Sanierungsmaßnahmen innerhalb des Gebietes der Altstadtsatzung mit Hilfe des Kommunalen Förderprogrammes.
Durch das Kommunale Förderprogramm werden finanzielle Zuschüsse aus Mitteln der Städtebauförderung gewährt.
Durch das Förderprogramm soll der finanzielle Aufwand der Eigentümer für die ortsbildgerechte Gestaltung im Geltungsbereich der Altstadtsatzung durch einen entsprechenden Zuschuss gemindert werden.
Die Altstadtsatzung dient dem Erhalt des historischen Charakters und des wertvollen Stadtgrundrisses der Altstadt Kahlas.
Die Förderung stellt sich wie folgt dar:
Wer wird gefördert?
Die Zuwendungen werden natürlichen oder juristischen Personen gewährt,
die Eigentümer von Grundstücken bzw. Wohn-/Teileigentum oder erbbauberechtigt innerhalb des Geltungsbereiches der Altstadtsatzung Zone A und B der Stadt Kahla sind.
Was wird gefördert?
Die Stadt Kahla fördert anteilig Sanierungs- und Gestaltungsmaßnahmen an Gebäuden und Nebengebäuden mit ortsbildprägendem Charakter.
Maßnahmen an Neubauten werden nicht unterstützt. Gefördert werden ausschließlich Aufwendungen des gestalterischen Mehraufwandes,
welcher sich aus den Festsetzungen der Altstadtsatzung für die Zone A ergibt. Eine Bezuschussung von Maßnahmen, welche lediglich den Anforderungen für die Zone B erfüllen, ist ausgeschlossen.
Die Förderung betrifft insbesondere folgende Maßnahmen:
- Fassadenarbeiten (z.B. Putz-, Maler-, Stuckateurarbeiten)
- Fenster, Fensterläden, Schaufenster, Türen und Tore
- Dacheindeckungen mit gestalterischem Mehraufwand
- Zäune und Einfriedungen, Eingangstreppentreppen, Stützmauern
Höhe der Förderung:
Die Höhe der Zuwendung wird im Einzelfall von der Stadt Kahla festgelegt.
Sie kann bis zu 30 % der anerkannten zuwendungs-fähigen Kosten betragen, jedoch höchstens 8.000,00 € je Grundstück/wirtschaftlicher Einheit.
Voraussetzung:
Maßnahmen können nur gefördert werden, wenn vor Beginn der Maßnahme ein schriftlicher Antrag auf Förderung gestellt und
eine Fördervereinbarung zwischen der Stadt Kahla und dem Bauherrn abgeschlossen wurde. Mit dem Antrag auf Förderung sind die folgenden Unterlagen einzureichen:
- kurze Beschreibung der geplanten Maßnahmen
- ggf. Planungsunterlagen
- Eigentumsnachweis
- Fotos zur Dokumentation des Bestandes
- mindestens 3 vergleichbare Kostenangebote zu den beabsichtigten Baumaßnahmen
- alle öffentlich-rechtlichen Genehmigungen (denkmalrechtliche Erlaubnis, insofern notwendig Baugenehmigung)
Bei der baulichen Realisierung ist die Einhaltung der gestalterischen Auflagen, formuliert in der Altstadtsatzung der Stadt Kahla für die Zone A, Voraussetzung für eine Förderung im Kommunalen Förderprogramm.
Die vollständigen Förderbestimmungen sind der „Richtlinie über das Kommunale Förderprogramm der Stadt Kahla im Rahmen der Städtebauförderung zur Durchführung privater Baumaßnahmen“ zu entnehmen
(siehe Internetseite der Stadt Kahla:
kahla.de/cs/SuO_Kommunales_Foerderprogramm....).
Die Altstadtstadtsatzung der Stadt Kahla ist auf der gleichen Internetseite veröffentlicht:
https://kahla.de/cs/SuO_Altstadtsatzung.php
Mit der Maßnahme darf erst nach Abschluss der Fördervereinbarung begonnen werden.
Antragsverfahren:
Der Antrag auf Gewährung von Zuwendungen für die Förderung privater Bauvorhaben ist
unter Verwendung des Antragsformulars bei der Stadt Kahla einzureichen.
Ein ausfüllbares Formular steht auf der Internetseite der Stadt Kahla zur Verfügung.
Folgende Verfahrensschritte sind zu beachten:
- Beratungsgespräch und Vor-Ort-Begehung mit Stadt Kahla (Bauamt) und Sanierungsträger
- Beantragung erforderlicher öffentlich-rechtlicher Genehmigungen durch den Bauherrn
- Antragstellung im Rahmen des Kommunalen Förderprogramms
- In begründeten Einzelfällen: Beantragung vorzeitiger Maßnahme beginn
- Entscheidung zur Förderung durch die Stadt
- Abschluss einer Fördervereinbarung zwischen Stadt und Eigentümer zur Regelung Durchführung und Abrechnung der zur fördernden Baumaßnahme
- Nach Fertigstellung - Vorlage der Schlussabrechnung und Prüfung der vertragsgemäßen Durchführung der Baumaßnahmen
- Auszahlung der Fördermittel durch die Stadt Kahla
Interessierte Bürgerinnen und Bürger können sich während der Öffnungszeiten an das Bauamt Kahla wenden.
Kontakt per Telefon:
036424 77601
oder per E-Mail:
bauamt@kahla.de
Grundsteuerreform 2025:
Mitteilung aus der Finanzabteilung an alle Grundstückseigentümer
Der Stadtrat hat in seiner Sitzung am 07.11.2024 folgende Hebesätze festgesetzt.
Grundsteuer A 330 v. H.
Grundsteuer B 430 v. H.
Die öffentliche Bekanntmachung der
Hebesatzsatzung finden sie in der Ausgabe der
Kahlaer Nachrichten vom 28.11.2024 Nr. 23/2024.
Ablauf und Verfahren Grundsteuerpflicht/Grundsteuermessbetrag:
Alle bisherigen Grundsteuerbescheide werden kraft Gesetzes zum 31.12.2024 mit Wirkung für die Zukunft aufgehoben.
Damit entfällt die bisherige Basis für Vorauszahlungen für 2025.
Seitens des Finanzamtes werden keine Aufhebungsbescheide für das Ende der Steuerpflicht zum 31.12.2024 versendet, auch nicht für Grundstücke auf fremden Grund- und Boden.
Die Besteuerung geht von Nutzer auf den Eigentümer über, die Steuerpflicht für die Nutzer von Garagen, Kleingärten, Bungalows u. ä. auf fremden Grund und Boden entfällt.
Das Finanzamt Jena ist als Bewertungsstelle für die Grundsteuerpflicht zuständig und die Stadt Kahla an die darin enthaltenen Angaben gebunden.
Sollten
Einwände gegen den Grundsteuermessbescheid bestehen, sind diese ausschließlich an das
Finanzamt Jena
Leutragraben 8
07743 Jena
Telefon Finanzamt Jena: 0361 573626-900
als zuständige Behörde zu richten.
Bitte beachten Sie, dass ein Widerspruch gegen einen Grundsteuerbescheid gemäß § 80 Abs. 2 Nr. 1 Verwaltungsgerichtsordnung keine aufschiebende Wirkung hat.
Ein Widerspruch entbindet nicht von der Zahlungspflicht.
Zur Ermittlung des Grundsteuerjahresbeitrags wird der vom Finanzamt festgelegte Messbetrag herangezogen. Mit den festgelegten Hebesätzen des Stadtrates ergibt sich der Grundsteuerbetrag.
Grundsteuermessbetrag * Hebesatz = Grundsteuer
Anfang Dezember werden voraussichtlich die neuen Grundsteuerbescheide an die Grundstückseigentümer durch die Stadt Kahla versendet.
Hinweise Zahlungsverkehr:
Die von Ihnen erteilten SEPA-Lastschriften behalten weiterhin ihre Gültigkeit, wenn Sie im Veranlagungsjahr 2025 steuerpflichtig bleiben. Bitte prüfen Sie die Angaben auf Ihren Grundsteuerbescheid.
Daueraufträge, die von Ihnen selbst an Ihre Bank erteilt wurden,
müssen an die neuen Grundsteuerwerte angepasst werden.
Hierauf hat die Stadt Kahla keinen Einfluss.
Ansprechpartner:
Die Mitarbeiter der Stadt Kahla, Abteilung Kasse oder Steuern, erreichen Sie bei Fragen unter folgenden Kontaktdaten:
Aufgrund der Vielzahl der Bescheide bitten wir um Ihr Verständnis, dass die Bearbeitung Ihrer Anliegen etwas länger dauern kann.
Besuch der Stadtbibliothek:
Die
Bibliothek ist geöffnet.
Die Bücherei kann ab sofort wieder ohne Termine besucht werden.
Neu: Online-Katalog zum Stöbern:
Mit unserer neuen Online-Suche haben Sie nun die Möglichkeit, bequemer und umfassender in unserem Bestand nach Büchern, Filmen, Spielen usw. zu suchen.
Eine Ausleihe, Verlängerung usw. ist aktuell nur vor Ort in der Bibliothek möglich.
Link:
Online-Katalog öffnen
Telefonnummer Bibliothek:
036424 52971
Facebook Kanal „Kahla - Tor zum Saaletal“:
Ihr wollt wissen, was monatlich in Kahla los ist,
sehen, welche Bilder beim Fotowettbewerb „Nett hier“ eingereicht wurden
oder wer beispielsweise den Kunstwettbewerb „Sichtweisen sichtbar machen“ in Kahla gewonnen hat?
Dann folgt gern der Seite
@Kahla - Tor zum Saaletal und verpasst zukünftig keine News mehr vom Citymanagement.
Einladung zur frühzeitigen Mitwirkung am Lärmaktionsplan der Stadt Kahla:
Die Stadt Kahla wird den Lärmaktionsplan von 2009 nach 2018 das zweite Mal fortschreiben.
Teil dieses Prozesses ist die Information der Stadtgesellschaft und die Möglichkeit für Bewohnerinnen
und Bewohnern der Stadt sich daran zu Beteiligen.
Warum ein Lärmaktionsplan?
Lärm ist ein bedeutendes Umweltproblem, welches große Teile der Bevölkerung Deutschlands und der EU beeinflusst.
Straßenverkehrslärm rangiert dabei an vorderster Stelle.
Eine Verbesserung dieser Problemstellung soll mit der Aufstellung und Fortschreibungen von Lärmaktionsplänen erfolgen.
Eine weitere Ursache für ist der Eisenbahnverkehr. Für Kartierung und Aktionsplanung zum Lärm des Eisenbahnverkehrs ist jedoch das Eisenbahnbundesamt (EBA) zuständig.
Nach einer Entscheidung des Europäischen Gerichtshofs müssen Lärmaktionspläne für alle Bereiche aufgestellt werden,
die von der verpflichtenden Lärmkartierung erfasst sind. Ein Ermessensspielraum besteht nur bei der Frage,
ob und welche Maßnahmen vorgesehen werden, nicht aber bei der Aufstellung des Lärmaktionsplans.
|
Die Verpflichtung zur Lärmaktionsplanung für die Gemeinde Kahla ergibt sich aus Artikel 9 der
EU-Umgebungslärmrichtlinie (2002/49/EG) sowie § 47e BImSchG i. V. m. § 7 der 34. BImSchV
und § 3 der Thüringer Immissionsschutz-Zuständigkeitsverordnung -ThürImZVO-.
|
Ergebnisse der Lärmkartierung
Zu einer der Hauptverursachern von Umgebungslärm zählt neben dem Eisenbahnverkehr der Straßenverkehr.
Für den Lärm des Straßenverkehrs hat das TLUBN (Thüringer Landesamt für Umwelt, Bergbau und Naturschutz)
zuständigkeitshalber 2022 entsprechend die „Lärmkarte Straßenverkehr“ zur Verfügung gestellt.
Die Lärmkartierung für Thüringen zeigt anhand von Lärmkarten die Lärmsituation an Hauptverkehrsstraßen mit mehr als drei Millionen Kfz pro Jahr.
Auch auf dem Gebiet Kahlas wurde eine entsprechende Kartierung im Bereich der B 88 durchgeführt.
Diese grenzt in einem Bereich von ca. 3,5 km an bebautes Gebiet. An dieser Strecke verläuft die B 88
auf einer Länge von ca. 1,5 km durch gewerblich genutzte Flächen und auf einer Länge von ca. 2 km durch Wohngebiete.

Die Veröffentlichung der Lärmkartierung für Kahla finden Sie
nochmal hier:
Kahla Thüringen - Lärmaktionsplan
Was sind Ziele und Zwecke der Fortschreibung des Lärmaktionsplanes?
Ziel ist die Sammlung und Entwicklung von Maßnahmen zur Minderung von Umgebungslärm, um Gesundheits-
und Umweltschutz zu fördern. Ein Teil davon ist insbesondere der Lärmschutz der Bevölkerung.
Die Lärmaktionsplanung ist dabei das Strategische Mittel einzelne Maßnahmen zu bündeln,
sinnvoll weiterzuentwickeln und zu ergänzen. Die Erstaufstellung eines Lärmaktionsplanes war 2009.
Eine Fortschreibung folgte 2018 und er soll erneut aktualisiert werden.
Mögliche Lärmminderungs-/Maßnahmen
Um dieses Ziel zu erreichen, sind folgende Maßnahmen vorgesehen:
- Ermittlung der Belastung durch Lärmkarten;
- Verminderung und Vorbeugen durch Aktionspläne, die auf Basis von Lärmkarten erarbeitet werden;
- Sicherstellung der Information an die Öffentlichkeit über Umgebungslärm und seine Auswirkungen.
Im Rahmen der vergangenen Lärmaktionsplanungen, sind neben kurzfristigen auch verschiedenen
mittel- und langfristigen Maßnahmen enthalten, die es zu überprüfen gilt.
Konkrete im Lärmaktionsplan diskutierten und bereits absehbare Maßnahmen werden unteranderem sein die Frage
nach Auswirkungen des B 88 Ausbaus und der Sanierung der Bachstraße, sowie die Förderung Lärmarmer Verkehrsmittel.
Weitere Maßnahmen sind unter anderem von Ihnen Abhängig.
Ihre Mitwirkungsmöglichkeiten
Eine Planung, die dem Ziel des Gesundheitsschutz Rechnung tragen will,
braucht auch die Information von den Bürgerinnen und Bürgern.
Daher möchten wir Sie bei unseren Tätigkeiten zur Lärmaktionsplanung mit einbeziehen.
Von jetzt bis zum 17.04.2024 können Sie uns ihre Hinweise hinsichtlich der Thematik Lärm mitteilen.
Senden Sie Ihre “Hinweise/Stellungnahme“ an:
bauverwaltung@kahla.de
oder postalisch an Bauamt, Markt 10, 07768 Kahla
Vorstellung von Zwischenergebnissen für die energetischen Quartierskonzepte Kahla-West und Löbschütz
Seit August 2022 wurde für die Bereiche Kahla-West und Löbschütz an der Erstellung energetischer Quartierskonzepte gearbeitet. Die Konzepte sollen einen Beitrag für die Zukunftsfähigkeit der Energieversorgung enthalten und den dazugehörigen Fördermöglichkeiten aufzeigen. Betrachtet werden die Einsparpotenziale bei privaten und öffentlichen Gebäuden, Bedarf und Versorgung mit Energie sowie die Integration von erneuerbaren Energien.
Zum jetzigen Zeitpunkt befindet sich die Bearbeitung des Konzeptes in einer entscheidenden Phase. Ausgehend einer ausführlichen Ausgangsanalyse in Verbindung mit bildbasierter Datenauswertung der Gebäude erfolgte eine Bedarfsermittlung und eine Bilanzierung der Energie- und Treibhausgasemissionen innerhalb der beiden Gebiete. Dem einhergehend erfolgte bereits eine hohe Beteiligung der betroffenen Bevölkerung.
Die bisherigen Bausteine mit ausgewählten Zwischenergebnissen der bisherigen Konzeptbearbeitung wird von Mitarbeitern der DSK - Deutsche Stadt- und Grundstücksentwicklungsgesellschaft im Rahmen des am 25. Mai. stattfindenden Stadtrates dargestellt. Zusätzlich berichtet die DSK über die restliche Projektzeit und über die Eckpunkte des Gebäudeenergiegesetztes.
Weitere Informationen über folgenden Link:
www.energiewende-kahla.de
Ein wichtiger Schritt für Kahla und den Tourismus:

In Zusammenarbeit mit dem Thüringer Tourismusverband ist eine neue Tourismus-Website entstanden, die Kahla mit seinen Vorzügen und Sehenswürdigkeiten darstellt. Touristen erhalten intuitiv und übersichtlich alle wesentlichen Informationen. Bilder und Texte laden Besucher der Seite zu MEHR ein.
Unter
www.tourismus.kahla.de kann sich jeder einen eigenen Eindruck verschaffen.
Eingebunden wird die Seite u. a. auf der kahla.de Seite unter dem Menüpunkt Tourismus sowie auf weiteren touristischen Kommunikationsmedien.
PS: Die Seite „lebt“ und wird fortlaufend ergänzt bzw. bei Neuerungen angepasst.
Schon gewusst? 💡
Aktuell erhalten Touristen Auskünfte und Infomaterial in der Stadtinformation, welche sich in der Bibliothek 📚
im Alten Amtsgericht in der Roßstraße 38 befindet. Zu folgenden Zeiten können hier Frau Rosenkranz
oder Frau Hofmann persönlich angetroffen werden: 👩🏻
- Montag 8.30 bis 12 Uhr und 14 bis 17 Uhr
- Dienstag geschlossen (aber telefonisch erreichbar unter 📞 036424 52971)
- Mittwoch 8.30 bis 12 Uhr
- Donnerstag 8.30 bis 12 Uhr und 14 bis 19 Uhr
- Freitag 8.30 bis 11 Uhr
Infomaterial zu Kahla und Umgebung kann Mo-Fr auch außerhalb der Öffnungszeiten im Zeitraum von 7 bis ca. 16 Uhr mitgenommen werden.
Es befindet sich im Vorraum der Bibliothek.
Vor Ort Hilfe für ukrainische Kriegsflüchtlinge in Kahla und Gemeinden:
In Kooperation der Stadt Kahla, der Verwaltungsgemeinschaft „Südliches Saaletal“ und den Vereinen rufen wir Sie,
werte Bürgerinnen und Bürger der Stadt Kahla und den Gemeinden der Verwaltungsgemeinschaft „Südliches Saaletal“,
die Unternehmerinnen und Unternehmer der Stadt Kahla und den Gemeinden der Verwaltungsgemeinschaft „Südliches Saaletal“ zur gemeinsamen Spendenaktion auf.
Für finanzielle Spenden ist ein Konto der Stadt Kahla unter dem
Verwendungszweck: Hilfe für Ukraine
Konto: DE 29 1203 0000 0001 0105 45
eingerichtet.
Für Fragen zur logistischen Regelung und Abgabe der Spenden sind wir für Sie unter
036424 77141 sowie per E-Mail unter
soziales@Kahla.de erreichbar.
Vielen Dank für Ihre Unterstützung.
Silvia Voigt
Vorsitzende VG „Südliches Saaletal“
Jan Schönfeld
Bürgermeister Stadt Kahla
Standesamt Kahla:

Liebe Einwohner der Stadt Kahla und der Verwaltungsgemeinschaft „Südliches Saaletal“,
liebe Gäste unserer schönen Region,
wir freuen uns, Sie im Rathaus der Stadt Kahla als ein gemeinsames Standesamt begrüßen zu dürfen.
Am 3. Januar 2022 haben wir unsere Arbeit in den sehr schönen, neu renovierten Büroräumen aufnehmen können.
Ob Eheschließungen, Geburten, alle Namensänderungen, Vaterschaftsanerkennungen,
Kirchenaustritte wie auch die Beurkundung von Sterbefällen und vieles mehr, wir beraten Sie zu allen personenstandsrechtlichen Angelegenheiten.
Wir sind grundsätzlich zuständig für alle Einwohner der Stadt Kahla und der Verwaltungsgemeinschaft „Südliches Saaletal“ sowie für Jeden,
dessen Personenstandseintrag in unserem Standesamt beurkundet ist bzw. fortgeführt wird.
Und natürlich auch für die Bürger, die ein berechtigtes Interesse an einen dieser Personenstandseinträge haben.
Sie sind im Rathaus Kahla richtig (egal, wo wohnhaft), wenn Sie den Wunsch haben, an einem der folgenden Trauorte zu heiraten:
- Porzellankirche der Leuchtenburg
- Herzogssaal im „Alten Jagdschloss“ Hummelshain
- Kemenate in Orlamünde
- Rathaus Kahla, kleiner und großer Saal
- Bohlenstube Kahla
Alle weitere Informationen finden Sie hier.
Veröffentlichung der Bodenrichtwerte:
Der Gutachterausschuss für Grundstückswerte für das Gebiet des Saale-Holzland-Kreises, des Saale-Orla-Kreises und der kreisfreien Stadt Jena
hat zum Stichtag 01.01.2022 auf Grundlage der Kaufpreissammlung flächendeckend Bodenrichtwerte ermittelt und veröffentlicht.
Der Bodenrichtwert ist der durchschnittliche Lagewert des Bodens für eine Mehrheit von Grundstücken innerhalb eines abgegrenzten Gebietes (Bodenrichtwertzone),
die nach ihren Grundstücksmerkmalen, insbesondere nach Art und Maß der Nutzbarkeit weitgehend übereinstimmen und für die im Wesentlichen gleiche allgemeine Wertverhältnisse vorliegen.
Er ist bezogen auf den Quadratmeter Grundstücksfläche eines Grundstücks mit den dargestellten Grundstücksmerkmalen (Bodenrichtwertgrundstück).
Im Geoportal Thüringen (
www.geoportal-th.de) sind die Bodenrichtwerte kreisweise oder thüringenweit im Shape-Format erhältlich.
In eigene Geoinformationssysteme können die Daten auch als Web Map Service (WMS) bzw. als Web Feature Service (WFS) integriert werden.
Der Freistaat Thüringen gestattet die kostenfreie kommerzielle und nichtkommerzielle Weiterverwendung der Bodenrichtwerte.
Mit dem „
Bodenrichtwertinformationssystem Thüringen (BORIS-TH)“ werden die Bodenrichtwerte unter
www.bodenrichtwerte-th.de im Internet kostenfrei zur Verfügung gestellt.
Jedermann kann von den Geschäftsstellen der Gutachterausschüsse für Grundstückswerte Auskunft über die Bodenrichtwerte erhalten.
Anschrift:
Gutachterausschuss für Grundstückswerte für das Gebiet des Saale-Holzland-Kreises, des Saale-Orla-Kreises und der kreisfreien Stadt Jena
Thüringer Landesamt für Bodenmanagement und Geoinformation
Geschäftsstelle des Gutachterausschusses im Katasterbereich Pößneck
Rosa-Luxemburg-Straße 7
07381 Pößneck
Neue Broschüre für Katastrophen/Alarm:
Ratgeber für Notfallvorsorge und richtiges Handeln in Notsituationen.
Wir möchten Sie informieren, dass eine neue Bürgerbroschüre zum Thema „
Ratgeber für Notfallvorsorge und richtiges Handeln in Notsituationen“ eingetroffen ist.
Die Broschüre befindet sich im Foyer des Rathauses. Diese Broschüre können Sie hier während der
Öffnungszeiten abholen.
Zusätzlich gibt es die Möglichkeit über unsere Internetseite www.kahla.de den
Ratgeber-Notfallvorsorge, [
1] herunterzuladen.
Hinweise:
Für den Inhalt der Bekanntmachungen auf dieser Seite
sind ausschließlich die jeweiligen Veranstalter verantwortlich.
Fehlende Nachrichten bitte melden an:
admin@kahla.de
# 00290239